Many
Manuals
search
Categories
Brands
Home
Linear
Unknown
Boiler
User Manual
Linear Boiler User Manual Page 20
Download
Share
Sharing
Add to my manuals
Print
Page
/
28
Table of contents
BOOKMARKS
Rated
.
/ 5. Based on
customer reviews
1
2
3
4
5
6
7
8
9
10
11
12
13
14
15
16
17
18
19
20
21
22
23
24
25
26
27
28
BIASI B/
40
PAGE 20
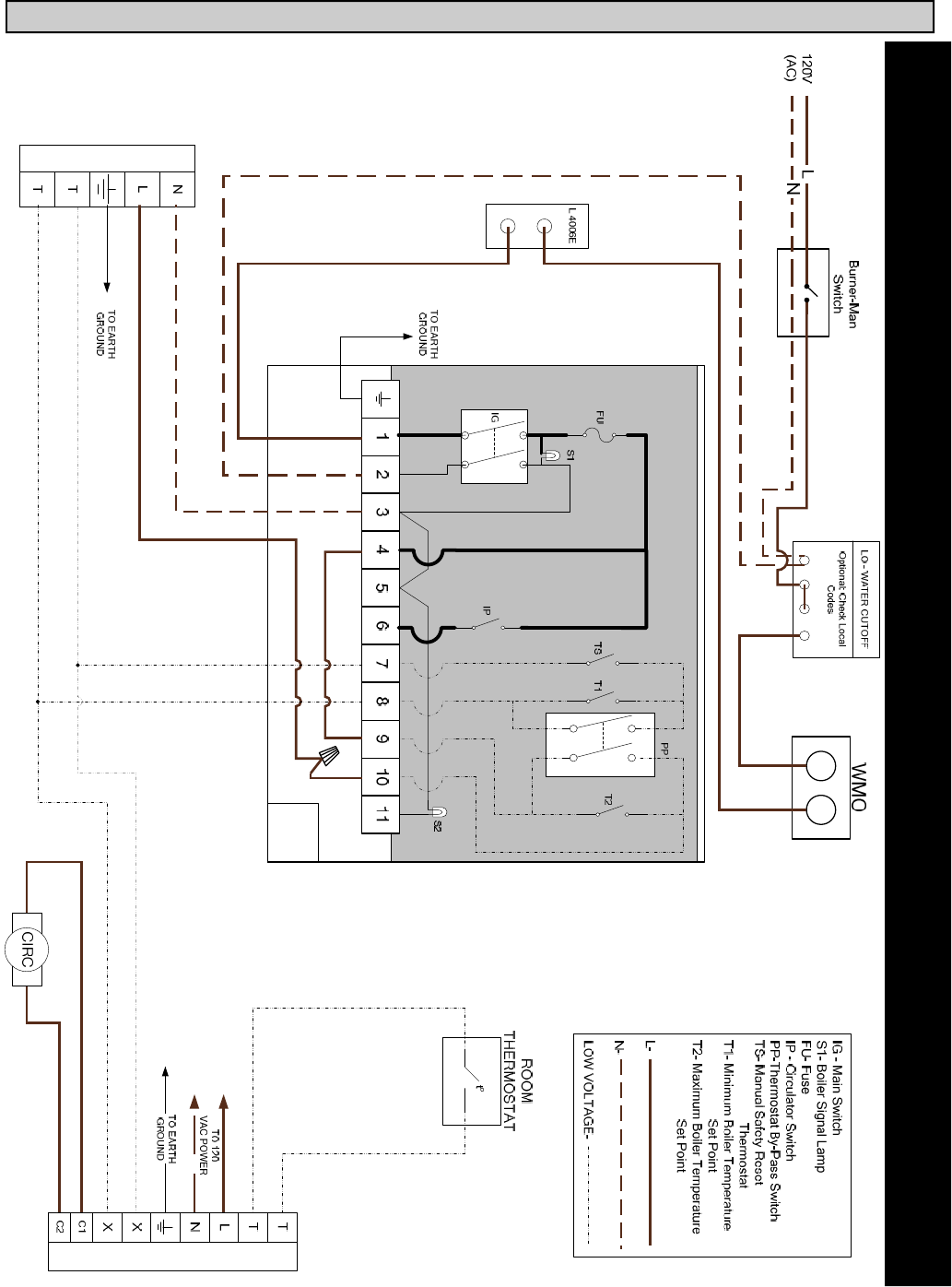
B-40 Contr
ol Panel
W
iring Diagram for Becke
tt/Heat W
i
se Oil Burner 24V
CIRCUL
ATOR RELAY
BURNER CON
TROL
1
2
...
15
16
17
18
19
20
21
22
23
24
25
26
27
28
6-12 SECTION
1
TABLE OF CONTENTS
3
WARNING
5
2. General Information:
6
4. Combustion Air Supply:
7
5. Boiler Location:
7
6. Boiler Block Assembly:
8
8. Burner Setup:
10
9. Gas Line Piping
12
PAGE 13
13
BIASI B/40
13
10. Breeching and Venting:
14
11. Piping:
15
10. Blocked Flue Switch:
15
PAGE 16
16
12. Boiler Jacket Assembly:
17
13. Wiring:
18
CONTROL PANEL DESCRIPTION
19
CIRCULATOR RELAY
20
BURNER CONTROL
20
PAGE 22
22
Burner Primary Control
23
14. Commissioning:
24
15. Maintenance:
24
16. Installer Notes
25
PAGE 26
26
PAGE 27
27
Warranty
28
Comments to this Manuals
No comments
Publish
Related products and manuals for Unknown Linear Boiler
Unknown Linear MDT-2 User Manual
(2 pages)
Unknown Linear DX-COKIT User Manual
(2 pages)
Unknown Linear RE-BWC1 User Manual
(1 pages)
Unknown Linear DR2 User Manual
(1 pages)
Unknown Linear 3060 User Manual
(2 pages)
Unknown Linear Central Vacuum User Manual
(1 pages)
Unknown Linear Sander WO15Z-1 User Manual
(2 pages)
Unknown Linear Drums 5525 User Manual
(12 pages)
Unknown Linear DMC-10 User Manual
(2 pages)
Unknown Linear Automobile Electronics 216559 B User Manual
(2 pages)
Unknown Linear DXS-10 User Manual
(1 pages)
Unknown Linear XR-16 User Manual
(2 pages)
Unknown Linear 115500 B User Manual
(1 pages)
Unknown Linear 2500-2346-LP User Manual
(2 pages)
Unknown Linear V361 User Manual
(1 pages)
Unknown Linear Satellite Radio 3089 User Manual
(2 pages)
Unknown Linear wt00z-1 User Manual
(4 pages)
Print document
Print page 20
Comments to this Manuals